Home
About Us
Services
Projects
Works in Progress
Contact Us
Home
About Us
Services
Projects
Works in Progress
Contact Us
Brisbane Based Architect
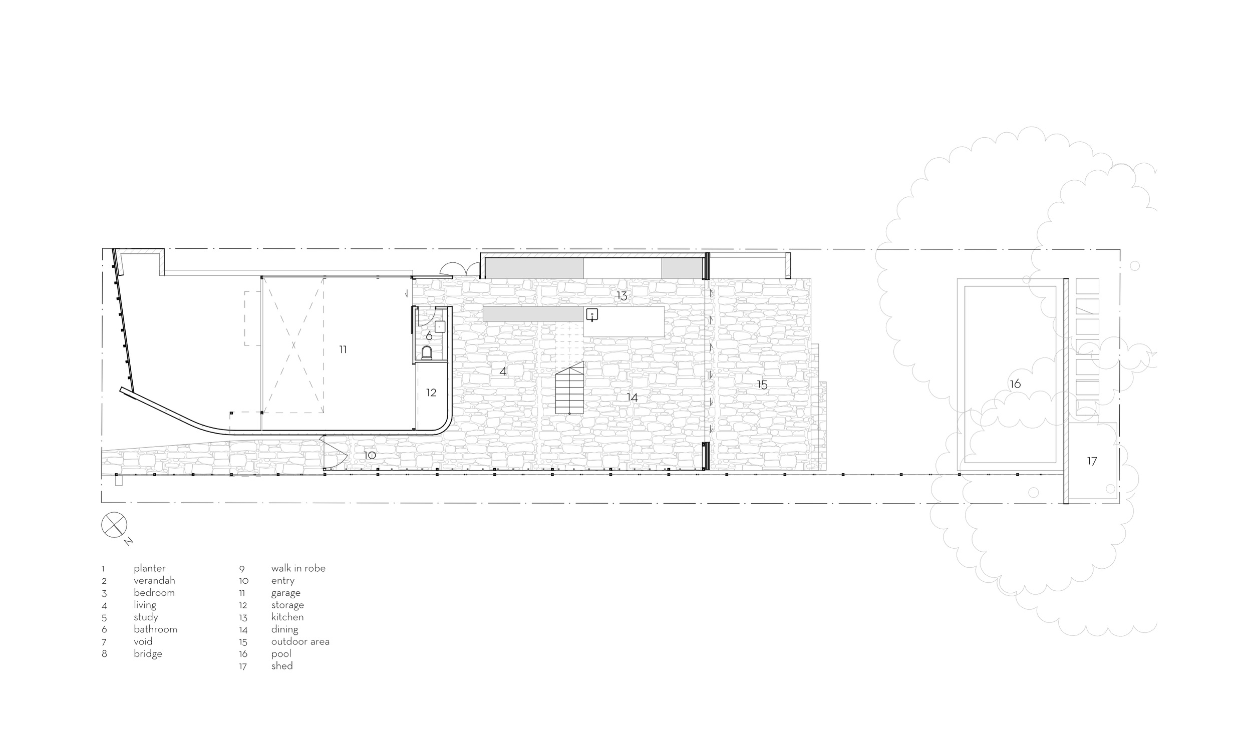
Ground Floor Plan
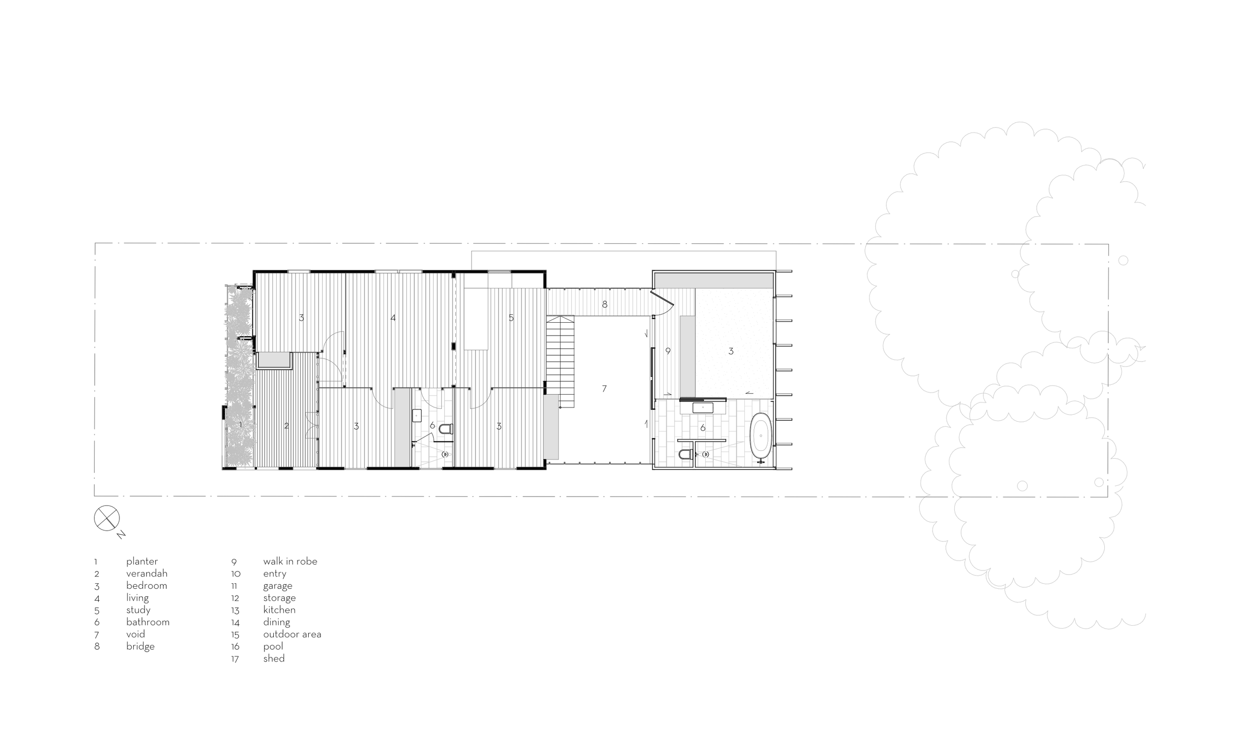
First Floor Plan
South West Elevation
North East Elevation
South East Elevation
North West Elevation
Embrace
New Page